飛騨高山を流れる宮川の畔りに佇む、THE MACHIYA HOTEL TAKAYAMA (ザ町家ホテル高山)の離れ。
風情あふれる「古い町並み」エリアに佇む、町家(町屋)をリノベーションした一棟貸し。
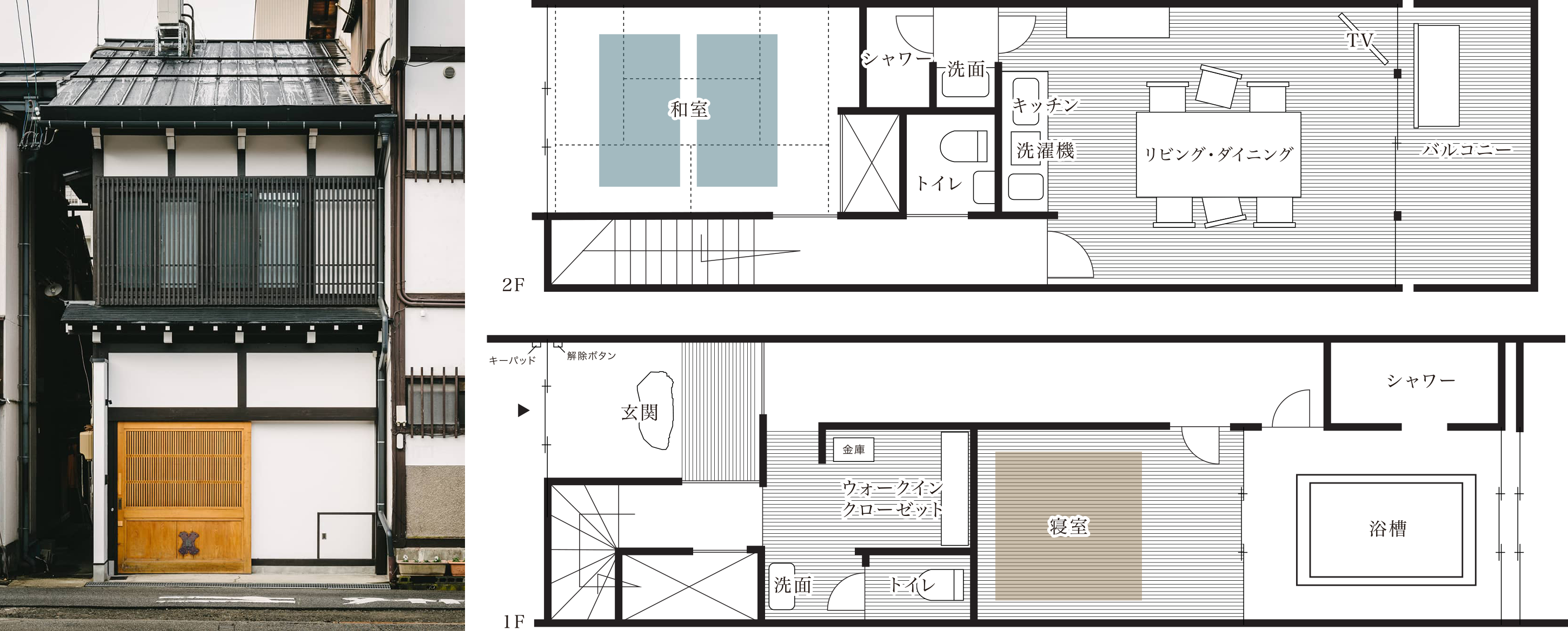
自炊ができるキッチン、地元産ヒノキ風呂の付いた浴室を備えた、1日1組限定の完全プライベートな空間。
飛騨高山の伝統・自然を間近に感じる滞在を。
111㎡
最大4名*
寝室2室
キングベッド1台
布団3組
浴室2室
トイレ2室
wi-fi
床暖房
キッチン
IHコンロ
電子レンジ
アメニティ
洗濯機
アイロン
浴衣
エアコン
加湿器※《お子様のご宿泊について》 独立した寝具をご利用されない5歳未満のお子様は宿泊人数に含める必要はなく、保護者様と同室で無料にてご宿泊が可能です。
もしお子様が独立した寝具をご利用される場合は、「大人1名」扱いの料金になりますので、ご予約の際にご宿泊人数に含めるよう、お願い致します。
大きな吹き抜けのある開放的なリビングダイニングからは、高山を代表する宮川の流れが目の前に広がります。キッチンには、IHコンロと調理器具を備え自炊が可能。すぐ近くの宮川朝市で飛騨高山の新鮮な食材を買って、お料理するのもおすすめです。1階の浴室には、木材の産地として古来より有名な飛騨高山のヒノキを使った大きな浴槽を設えました。飛騨高山の清々しい自然に包まれているような気分でリラックスください。屏風アートや縁起が良い兎のモチーフ・竹材を取り入れた和室や、キングベットが置かれた落ち着いた雰囲気の洋寝室でゆったりとおくつろぎいただけます。 随所に飛騨高山の古材が使われ、伝統的な趣を残しながら快適にリノベーションされた一棟貸し町家。飛騨高山の自然や文化を感じながら、日常から離れた特別なひとときをお楽しみください。
















